몬트리올 관광지로 유명한 편.
건축 양식은 특이함. 콘크리트 시멘트 모듈을 사용해서 만든, 1950-60년대 유행했던 브루탈리즘 (brutalism)양식이다. 난 개인적으로 썩 좋아하는 건축양식은 아니다. 아무래도 어린시절부터 한국 기와집이나 사찰 건축에 '나무'가 많이 들어가 있어서, 그걸 보고 자란 탓이다.
캐나다 토론토 요크대학 등 1950년대 이후 주립, 공립대학의 경우 철제나 콘크리이트를 그대로 노출시킨 '브루탈리즘' 건축 양식으로 지어진 건물들이 많다. 스산한 느낌이 많이 들고, 회색 도시같다는 생각을 할 때가 많다.
2014년, 캐나다 몬트리올 하비타트 67에 직접 가볼 기회가 있었는데, 여름이라서 정원이나 풀, 나무가 많이 보이긴 했지만, 콘크리이트 외벽은 스산해 보였다. 옆에 세인트 로렌스 강이 있어서 전망은 좋았고, 바람도 많이 불었다.
맥길 대학에서 가는 버스 편이 있는데, 대중 교통 접근이 조금 불편하다. 그리고 주변이 주택가가 아닌 것도 단점이다.
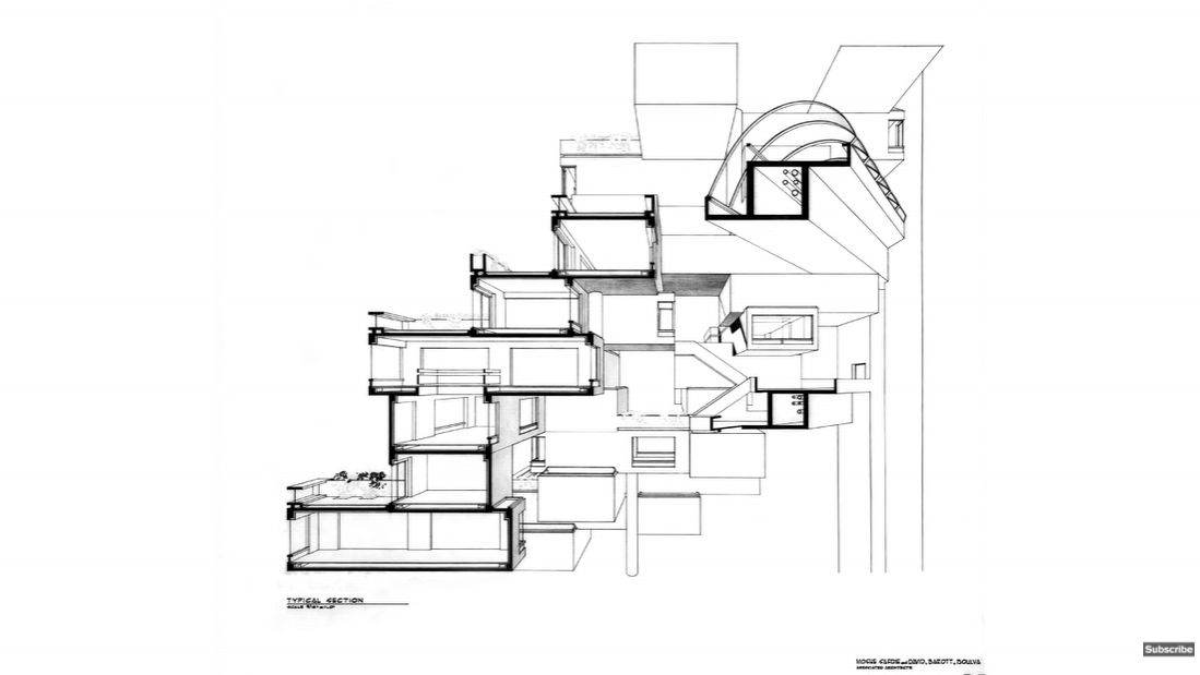
캐나다 몬트리올 시, 건축물 이름. 하비타트 67.
설계자는 당시 대학생이었던 모이셰 사프디 (Moishe Safdie).
"우리 모두 정원을 갖자" 모토 내세움. 모이셰 사프디의 인터뷰에 의하면, 그 설계 목적은, 당시 사람들이 '아파트'를 좋아하지 않고, 대부분 자기 집이나 교외 넓은 집을 선호했는데, 이런 견해를 바꾸고 싶었다고 한다. 그래서 사프디는 도시에서 '정원'이 있는 아파트를 설계하게 되었다고 함.
1967년 몬트리올 엑스포 개최를 대비해 만든 것임.
공동주택이 아님. 개인 소유이고 가격은 약 6억 4천에서 15억까지 다양함 (캐나다 675,000 달러에서 1.65 million 달러)로 비싼 편임.
354개 조립식 (모듈)으로 만들어짐.
위 층으로 갈수록 방 갯수가 줄어들어 피라미드 식으로 됨.
옆에 흐르는 강은 세인트 로렌스 강임.
Habitat 67 cost-
Habitat cost about $17 million to build, which today works out to $128 million — a high price tag for an apartment building with 158 units. A reason for the cost was that Safdie didn't just want to build his iconic modular units.Sep. 2, 2019
Thomas MacDonald June 18, 2019
Habitat '67, the revolutionary modular housing complex designed by Moshe Safdie, is an icon of mid century architecture. But though it was meant to transform urban living, in recent years, it has fallen into an unfortunate trend.
Apartments and condos in the structure appear to continue to inflate in price as the rest of the city also succumbs to the increases in costs of living brought by luxury development. One Habitat '67 unit, for example, is curently on the market for a whopping $1,650,000.
Cheaper units are rare, but do occassionally hit popular real estate sites. Right now, there's a ground-floor Habitat '67 apartment for sale for the much more affordable price of $675,000.
That number is, of course, still out of reach for many, if not most. But it's a fraction of the cost of its neighbours on higher floors. The apartment, a "unit of 2 cubes on 2 levels with 2 terraces," is generous in size despite its price tag.
The post on the Sutton real estate site describes the unit as "everything you have always dreamed of... A garden, the city, a port...and why not an island. Let yourself be lulled by the peacefulness, the perfums of a luxurious natural environment. No matter where you look, each window will be like a living painting."
How Montreal's Habitat 67 is inspiring a new generation of apartments in Asia
Social Sharing
52 years ago, Habitat heralded a new way to build urban housing. The style is now catching on internationally
Craig Desson · CBC News · Posted: Sep 02, 2019 4:00 AM ET | Last Updated: September 2, 2019
Architect Moshe Safdie poses at Habitat 67 during the unveiling of a stamp depicting his famous stacked housing complex. More than 50 years after it was built, the Habitat style of construction is experiencing a renaissance. (Graham Hughes/The Canadian Press)
comments
Habitat 67, a seemingly bizarre and innovative collection of modular apartments overlooking the St. Lawrence River, has been around for more than 50 years. Moshe Safdie still can't believe it exists.
"It's like a fairy tale. How did I ever get it built?" said Safdie, 81. The Israeli-Canadian architect designed the project, and was in his 20s when it opened in 1967.
Built for Expo 67 in Montreal's Cité du Havre neighbourhood, not far from the Old Port, its cubist design, floor-to-ceiling windows and rooftop gardens were heralded as a new way to build urban housing.
"The objective was to rethink the apartment building," said Safdie.
Habitat turned Safdie into an overnight success. He made the cover of Newsweek — a photo of him and his chef-d'oeuvre appeared below a headline that read: "The shape of things to come."
Architect Moshe Safdie sits in front of Habitat 67 in 1967. (File photo/The Canadian Press)
There were plans to build similar buildings in New York City, Jerusalem and Puerto Rico, but they were never built, mostly because of the cost. Habitat was built as a one-off for Expo 67 with government money, unlike regular apartment towers which are usually paid for by private investors looking to turn a profit.
Now, five decades later, Safdie is building versions of his iconic buildings once again — in Asia.
AS IT HAPPENSArchitects want to build a Toronto highrise out of wood and trees — and it's inspired by Habitat 67
Habitat, the late bloomer
Hans Ibelings, an architecture historian at the University of Toronto, said it's not unusual for ideas in architecture to take decades to take hold.
"I believe that when something is new in architecture, it's seen as a novelty," he explained.
"When it's 30, 40 years old, and if it managed to survive … then it can become a classic and you can see this clearly with Habitat."
To understand why the Habitat style is experiencing a renaissance, it's worth looking at what made it a unique building in the first place.
Safdie's breakthrough was that he realized by adding large terraces and wide laneways between units, an apartment complex could feel like a neighbourhood in the suburbs.
Habitat 67 showed that high-density urban housing could be built without making people feel like they've been crammed into a concrete shoebox.
Guided tours of Habitat 67, including Safdie's apartment, are now being offered. (Safdie Architects)
"Habitat tries to give to the individual … what he wants in a suburb, but goes a step further and gives them the positive things a city has to offer," Safdie told CBC Television in 1966.
Sky-high costs
Habitat cost about $17 million to build, which today works out to $128 million — a high price tag for an apartment building with 158 units.
A reason for the cost was that Safdie didn't just want to build his iconic modular units. He wanted to create a factory to build them in.
Safdie envisioned Habitats being mass produced, with the component parts being built in factories not unlike how cars are built and assembled. He hoped the process would drive down construction costs.
However, according to Avi Friedman, a professor of architecture at McGill University, the money needed to create his apartment factory never materialized.
He says while there are examples of prefabricated buildings made out other materials such as wood, the investment needed concrete building factory is enormous.
"We are talking about many millions, perhaps tens of millions," said Friedman.
And, he added, real estate development is cyclical, so it's unlikely there would ever be enough orders to make a concrete apartment factory profitable.
Have a look inside Montreal's Habitat 67
The architect for Habitat 67 explains his work as we tour the building. 2:27
Moving on, and coming back
After Habitat 67, Safdie built other types of buildings. He created the National Gallery of Canada in Ottawa, Terminal 1 at Toronto's Pearson International Airport and the Yad Vashem Holocaust History Museum in Jerusalem.
"He moved into a completely different direction," said Ibelings.
While Safdie did build a few Habitat-inspired buildings, such as Boston's Esplanade Condominiums, they didn't come close to the grand scale he had envisioned.
But in recent years, Asia's growing cities have created a demand for Safdie's design.
His reputation for building high-density housing with large balconies, shared gardens and open spaces is resonating with Asian real estate developers looking to create something other than a regular apartment tower.
Habitat Qinhuangdao is located in the beach front city of Qinhuangdao and faces the Bohai Sea. (Safdie Architects )
Some Asian developers are approaching Safdie's architecture firm because they're fans of his style. In other cases, Safdie's firm will submit a proposal for a Habitat-style building that fits with a developer's call for pitches.
"The increased density of today's cities requires us to rethink building types to maintain a sense of community," said Safdie.
Habitat Qinhuangdao, located about 300 kilometres from Beijing in the city of Qinhuangdao, is a massive complex of 30-storey apartment towers that gives its residents the terraces and wide pathways found in Habitat 67.
Habitat Qinhuangdao features the square balconies found in Montreal's Habitat 67. (Safdie Architects)
Then in Singapore, there's Sky Habitat. The building is a 38-storey apartment complex with similar large balconies and outdoor terraces.
Sky Habitat has three bridges connecting the two towers that provide green spaces resembling the outdoor terraces in Habitat 67. (Safdie Architects )
In Colombo, Safdie has designed what will be the largest residential building in Sri Lanka. Its leaning tower will give apartments a terrace with a view of the sky above.
Safdie is happy to finally see his vision spread internationally. But even with the proliferation of Habitat-style buildings on the other side of the world, he still has a soft spot for the one that started it all.
"It's still the most radical building I ever built, and that's after 55 years of practising architecture," he said.
건축 설계자, 모이셰 사프디 회상.
표어 "우리 모두가 정원을 갖자"



































'도시계획' 카테고리의 다른 글
| nov 19. 윤석열 '시장에 맡기자' , 이재명 기본주택 (0) | 2021.11.22 |
|---|---|
| 이재명 ( 국토보유세 ), 윤석열 (종부세 재검토) (0) | 2021.11.20 |
| 주택시장 가격숭배론자 논리. 김현아 (국힘) 민간건설사 공급 만능론. (0) | 2021.11.20 |
| 독일 , 우툼 동네, 100년짜리 기왓장 바꾸기. (0) | 2021.11.17 |
| 독일 북부, 함부르크, 브레멘, 하노버 집값 상승 + 건설비용 비교 (1962년에 비해 28배 상승) (0) | 2021.11.16 |
| Red Flag: 56% vote to expropriate big landlords-BY NATHANIEL FLAKIN (0) | 2021.11.16 |
| 독일 베를린 시 아파트 12만채 보유한 '도이체보넨' 민간회사 국유화 주민투표 찬성 56% 통과. 한국 무늬만 공공 임대주택 (0) | 2021.11.16 |